春日井市高山町3丁目に全3棟の新築一戸建てが誕生!!








| 価格 | 価格 3880万円〜4080万円 | 都市計画 | 市街化区域 |
|---|---|---|---|
| 所在地 | 春日井市高山町3丁目 | 用途地域 | 第一種中高層住居専用地域 |
| 交通 | 名鉄小牧線「春日井」駅徒歩約25分 | 土地権利 | 所有権 |
| 敷地面積 | 103.04u〜124.81u | 地目 | 宅地 |
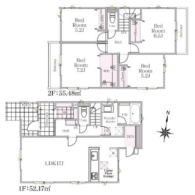
| 延床面積 | 93.57u〜107.65u | 完成 | 2024年3月 |
| 接道状況 | 公道 北側約6m、西側約6m | 間取り | 3LDK〜4LDK |
| 建ぺい率 | 60% | 施設 | 公営水道、本下水、中部電力(オール電化) |
| 容積率 | 200% | その他の法令 | 法22条区域、宅地造成工事等規制区域、景観条例、特定都市河川浸水被害対策法 |
| 建物構造 | 木造2階建 | 取引態様 | 仲介 |